Contact
Clemenceau
Vergroten

Anderlecht

Clemenceau

vanaf 799.000 €
Referentie : #7276417

Woonoppervlakte van 600 m2

12 kamers

6 badkamers

Met terras

Kenmerken van het pand

Algemene informatie

vanaf 799.000€

Anderlecht

huis

1960

3

Nieuw

2

Nieuw

vanaf akte

Interieur

600 m2

geïnstalleerd

12

24 m2

20 m2

17 m2

17 m2

16 m2

6

ja

neen

neen

Buitenkant

ja

7 m2

0

Energie

gas cv

ja

Beschrijving

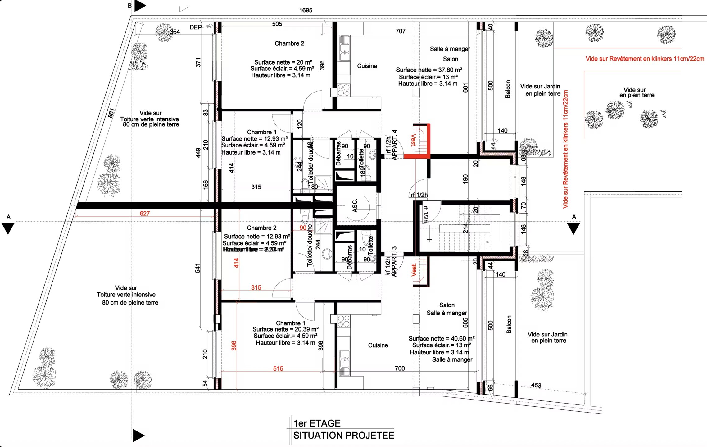
Gebouw met vergunning voor 6 appartementen te Anderlecht

Rêvimmo stelt dit magazijn/gebouw te koop voor herontwikkeling, ideaal gelegen teruggetrokken van de straat, nabij het centrum van Brussel, de metro, openbaar vervoer, winkels en scholen.

Dit pand valt op door zijn reeds verkregen stedenbouwkundige vergunning, een indeling die perfect geschikt is voor een residentieel project en een strategische ligging. Ideaal voor investeerders, projectontwikkelaars of bouwpromotors, het biedt een uitstekend rendements- en waardepotentieel in een rustige en gegeerde omgeving.

Indeling:
Op het gelijkvloers bevindt zich een ruimte van ±330 m², toegankelijk via een zijpad, ideaal voor de eerste projectontwikkelingen.
De eerste verdieping bestaat uit ±330 m², perfect geschikt voor de realisatie van appartementen.
Op de tweede verdieping is een laatste plateau van ±330 m² beschikbaar, geschikt voor lichte appartementen met buitenruimte.

Vergunde ontwikkeling:
Het project voorziet ±600 m² bewoonbare oppervlakte, verdeeld over 6 moderne 2-slaapkamerappartementen, elk met een terras.

Buiten:
Het pand geniet van een rustige, teruggetrokken ligging met een discrete en praktische toegang via het zijpad.

Voordelen:
De vergunning voor 6 appartementen is reeds verleend. Het magazijn beslaat ±1.000 m² verdeeld over drie verdiepingen. Gelegen in een wijk in volle ontwikkeling met grote vraag naar huur- en koopwoningen, biedt dit pand een zeldzame kans in Anderlecht met een hoog waardepotentieel.

Prijs: Doe een bod vanaf €799.000 (onder voorbehoud van goedkeuring door de eigenaars)

Beschrijving uitsluitend ter informatie en onder voorbehoud van wijzigingen.

Gratis schatting binnen 12 uur!

? Contacteer ons nu:
Rêvimmo: 071 11 56 50
Simon: 0479 72 01 56
Kevin: 0470 34 87 93
www.revimmo.be

Documenten

Bezoek dit pand met Kevin

Uw contactgegevens

Een specifiek verzoek ?

Dank u voor uw bericht, wij zullen u zo spoedig mogelijk antwoorden!
Erreur. Veuillez réessayer ou contactez-nous