Contact
Paul Pastur 144
Vergroten

Marcinelle

Paul Pastur 144

vanaf 110.000 €

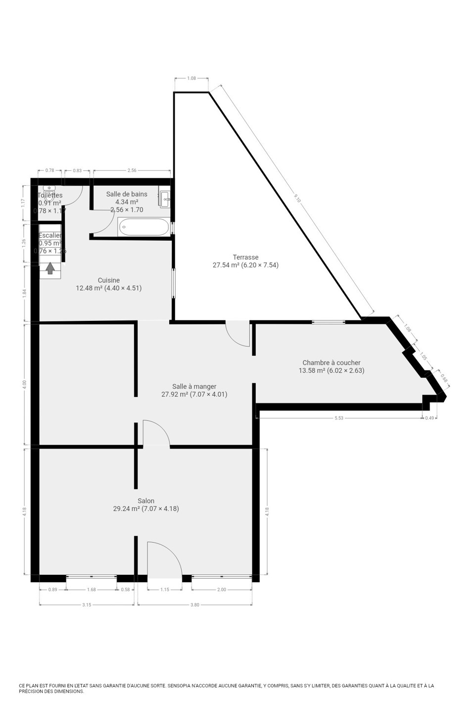
Woonoppervlakte van 120 m2

3 kamers

1 badkamer

Met terras

Kenmerken van het pand

Algemene informatie

vanaf 110.000€

Marcinelle

huis

1930

1

Te renoveren

2

Te renoveren

onmiddellijk

Interieur

120 m2

13 m2

3

14 m2

17 m2

1

neen

neen

Buitenkant

ja

27 m2

Energie

peb e

423 kWh/m2

gas

ja

Beschrijving

Charleroi, situé stratégiquement non loin des axes autoroutiers, des transports en communs et du centre ville de Charleroi, Rêvimmo Charleroi vous propose cette maison à rénover de 120m2 habitable + terrasse de 20m2 avec un beau potentiel. Possibilité maison unifamiliale ou colocation 4 chambres. Elément techniques: nouvelle chaudière Vaillant, Châssis PVC double vitrage et toiture entièrement refaite. Pas de compteurs actuellement (électeurs, gaz et eau à placer). PEB: E 423 kwh/m2/an - 53593 Kwh/an.
Commission d’agence à charge de l’acquéreur de 4%HTVA. Infos et visites: Rêvimmo Charleroi 071/11 56 50 ou charleroi@revimmo.be

Kaart

Avenue Paul Pastur 144 - 6001 Marcinelle

Bezoek dit pand met Maeva

Uw contactgegevens

Een specifiek verzoek ?

Dank u voor uw bericht, wij zullen u zo spoedig mogelijk antwoorden!
Erreur. Veuillez réessayer ou contactez-nous