Contact
Alsemberg 416/ Atelier arrière
Agrandir
Sous option

Uccle

Alsemberg 416/ Atelier arrière

à partir de 210.000 €

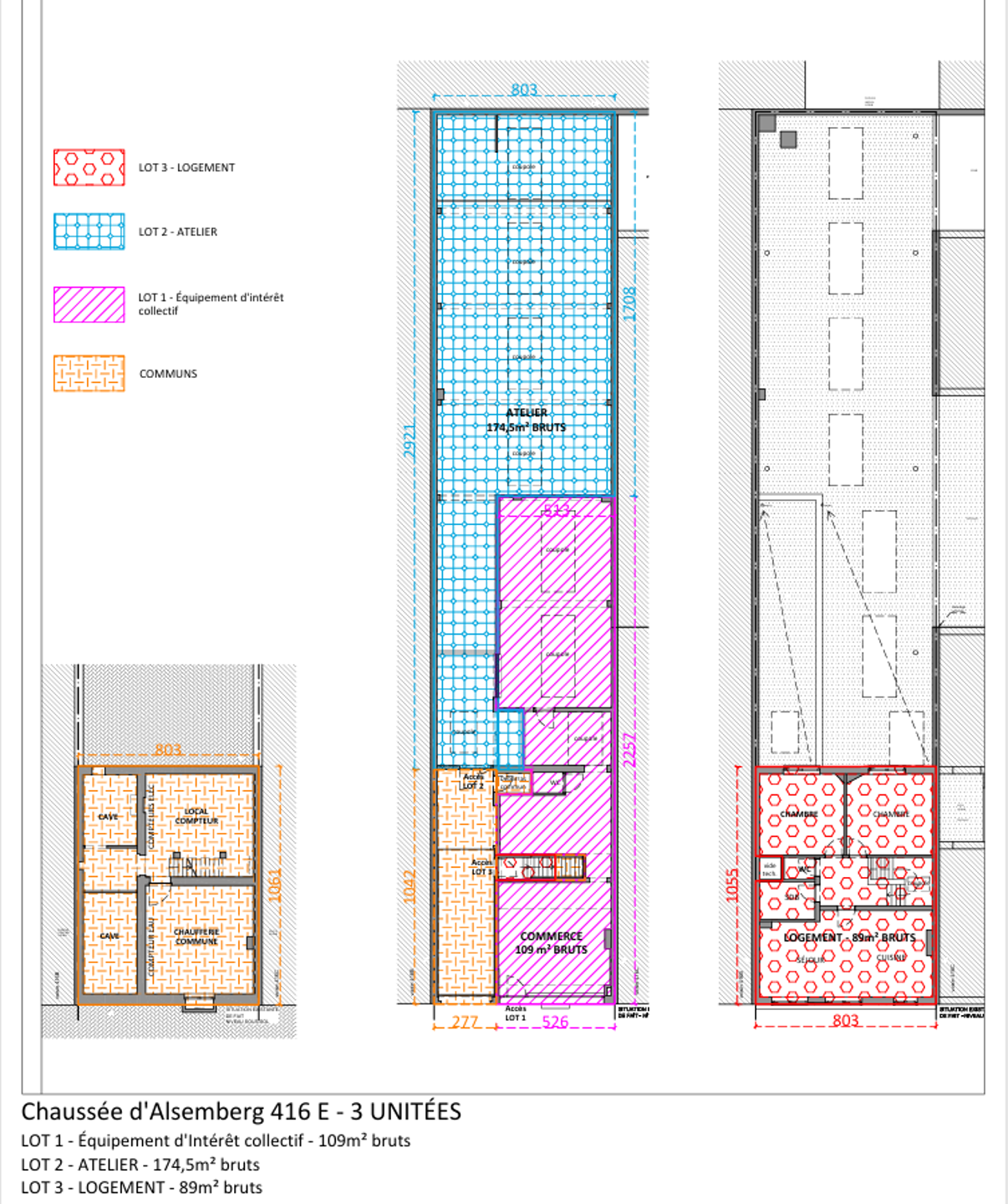
Surface habitable de 175 m2

chambre

salle de bain

Caractéristiques du bien

Information générale

à partir de 210.000€

Uccle

industriel

1951

1

Bon état

2

Bon état

à l'acte

Intérieur

175 m2

non

Extérieur

1

Description

Uccle, Coghen – Chaussée d’Alsemberg, Revimmo Brussels présente un spacieux atelier polyvalent de 175 m² avec entrée indépendante. Idéalement situé dans le quartier Coghen, sur un axe commerçant et vivant, il se compose d’un hall pour chargement et déchargement, d’une grande pièce et d’une pièce arrière, complété par une entrée séparée facilitant l’autonomie d’usage. Actuellement occupé et loué, il génère un loyer annuel de 11.600 €, soit un rendement net de 5,5 %, garantissant un revenu immédiat à l’acquéreur ou une exploitation personnelle. Les charges comprennent un précompte immobilier de 125 €/mois (à charge de l’acquéreur), un compteur d’électricité individuel et une provision mensuelle de 75 € pour l’eau et le chauffage. Situé dans une petite copropriété de 3 lots qui sont également proposés à la vente, ce bien offre sécurité et potentiel, idéal pour un investissement rentable ou une occupation privative.Une commission d'agence d'agence de 2% htva est à charge de l'acquéreur .

Infos & visites : Rêvimmo Brussels – 02/217.00.32 – brussels@revimmo.be

Carte

Chaussée d'Alsemberg 416 - 1180 Uccle

Visitez ce bien avec Lamia

Vos coordonnées

Un demande spécifique ?

Merci pour votre message, nous vous répondrons dans les plus bref délais !
Erreur. Veuillez réessayer ou contactez-nous