Contact
Beaumont 345
Agrandir

Charleroi-Marchienne-au-Pont

Beaumont 345

1.000 €

Surface habitable de 75 m2

chambre

salle de bain

Caractéristiques du bien

Information générale

1.000€

Charleroi-Marchienne-au-Pont

commerce

0

Neuf

Neuf

immédiatement

Intérieur

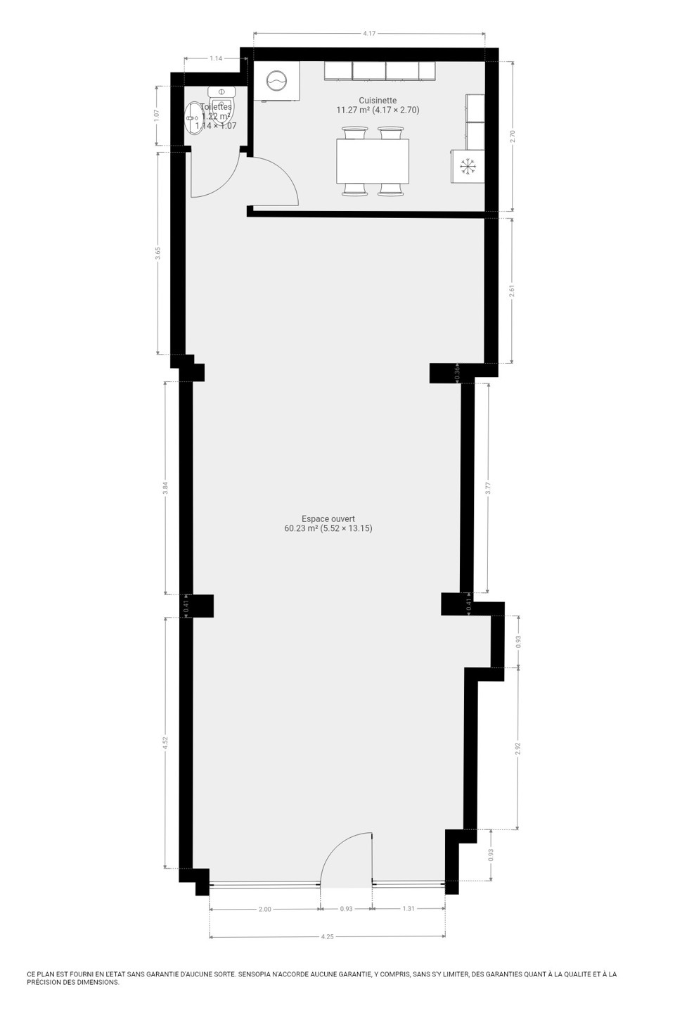
75 m2

11.5 m2

Description

Local commercial ±75 m² à louer – Marchienne-au-Pont (chaussée à fort passage)

Vous recherchez un emplacement visible et facilement accessible pour développer votre activité ?
Découvrez ce local commercial de ±75 m² idéalement situé sur une chaussée très fréquentée à Marchienne-au-Pont, avec parking disponible juste à côté sur la petite place au coin de la rue. Une opportunité parfaite pour donner de la visibilité à votre projet !

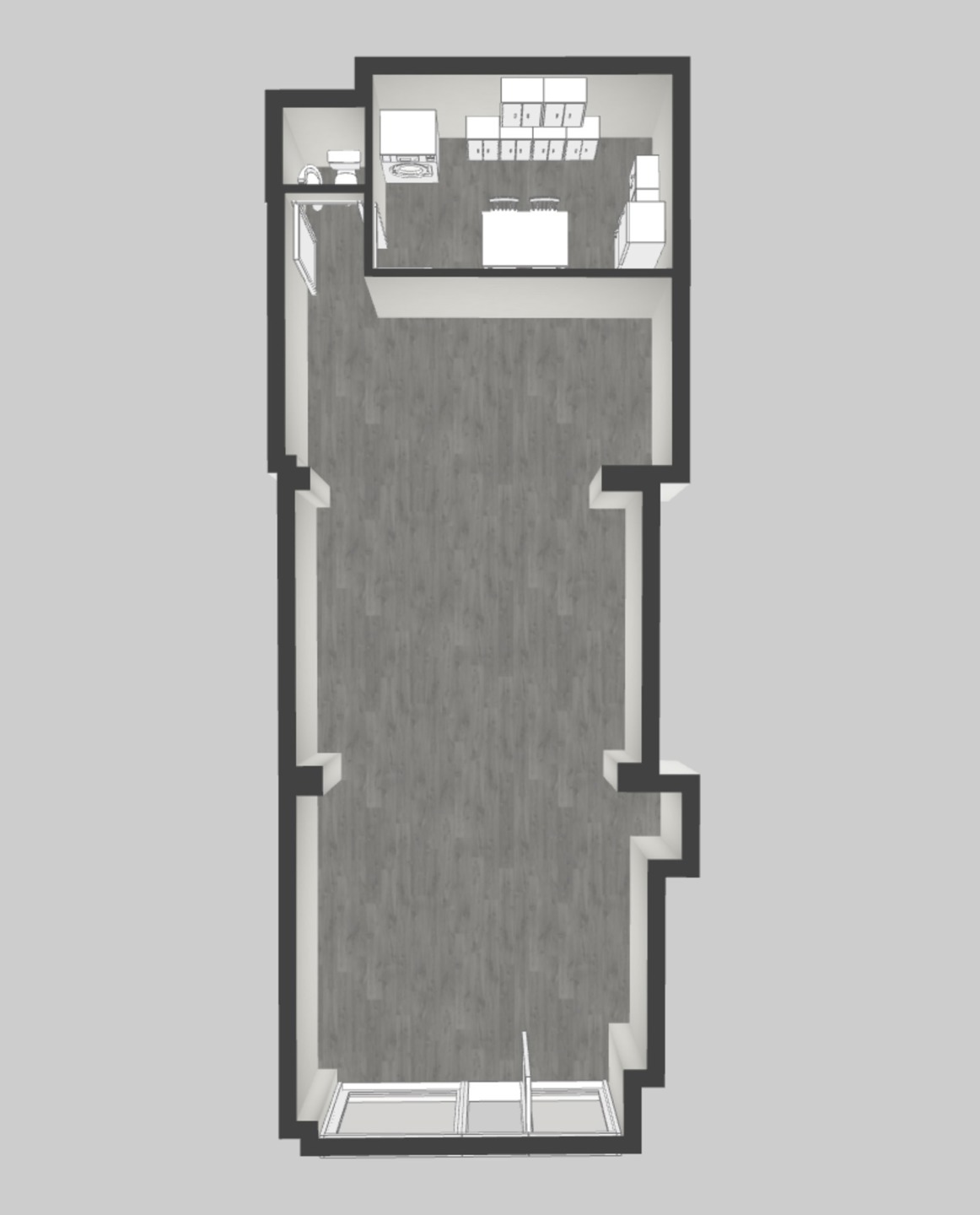
Ce bien se compose de :
Un espace ouvert lumineux de ±60 m²
Une cuisine équipée de ±11,5 m²
Une toilette séparée

Cet espace polyvalent est idéal pour l’installation d’un bureau, d’un salon de coiffure, d’un barber shop, d’un petit commerce ou toute autre activité professionnelle nécessitant visibilité et accessibilité.

Conditions attractives :
Loyer mensuel : 1.000 €
Charges communes : ±20 €/mois pour l’eau

Disponible immédiatement
Ce local n’attend plus que vos idées et votre installation dans un environnement dynamique et visible !

Emplacement : Chaussée à fort passage – Marchienne-au-Pont
Parking facile : à côté sur la petite place au coin de la rue
Info & visites : 0470/34.87.93 ou ka@revimmo.be

Documents

Visitez ce bien avec Kevin

Vos coordonnées

Un demande spécifique ?

Merci pour votre message, nous vous répondrons dans les plus bref délais !
Erreur. Veuillez réessayer ou contactez-nous