Contact
Combattants 42
Agrandir

Chatelineau

Combattants 42

255.000 €

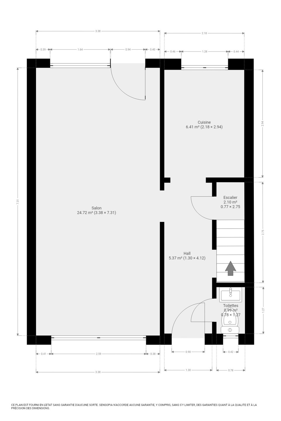
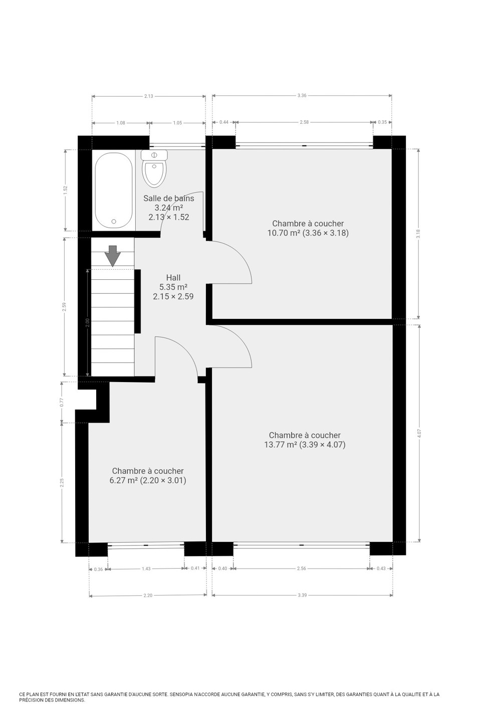
Surface habitable de 105 m2

4 chambres

1 salle de bain

Avec jardin

Avec terrasse

Caractéristiques du bien

Information générale

255.000€

Chatelineau

maison

2

À rafraîchir

2

À rafraîchir

à l'acte

Intérieur

105 m2

semi-équipée

6.4 m2

4

13.7 m2

10.7 m2

6.3 m2

12 m2

1

oui

non

non

Extérieur

oui

15 m2

oui

1

Energie

peb d

311 kWh/m2

mazout (chauf. centr.)

oui

Description

Revimmo vous propose une maison deux façades située dans un quartier calme. Dès l’entrée, un hall distribue les pièces principales et offre un accueil fonctionnel. Le living, lumineux et convivial, s’ouvre sur le jardin grâce à une baie vitrée qui apporte une belle clarté et une vue dégagée sur l’extérieur.

La maison dispose d’un garage sous le bâtiment avec accès direct depuis la rue. Le stationnement dans la rue est également facile pour les résidents et les visiteurs. À l’arrière, l’espace extérieur offre plusieurs possibilités d’aménagement dans un cadre tranquille.

Quatre chambres complètent le bien, idéales pour une famille ou pour toute personne souhaitant des pièces polyvalentes. Une cave couvre toute la superficie de la maison et inclut le garage, avec un accès direct au jardin, pratique pour le rangement ou les activités extérieures.

Les châssis en PVC double vitrage assurent une bonne isolation et le chauffage au mazout fonctionne efficacement. L’ensemble offre un cadre de vie pratique avec un jardin accessible depuis les caves et un environnement paisible. Une opportunité intéressante pour s’installer ou investir dans un quartier serein.

Pour toutes informations et visites contactez via charleroi@revimmo.be
ou au 071/11.56.50

Visitez ce bien avec Flavio

Vos coordonnées

Un demande spécifique ?

Merci pour votre message, nous vous répondrons dans les plus bref délais !
Erreur. Veuillez réessayer ou contactez-nous