Contact
Alsemberg 416 / Appartement
Agrandir
Vendu

Uccle

Alsemberg 416 / Appartement

255.000 €
Référence : #7207706

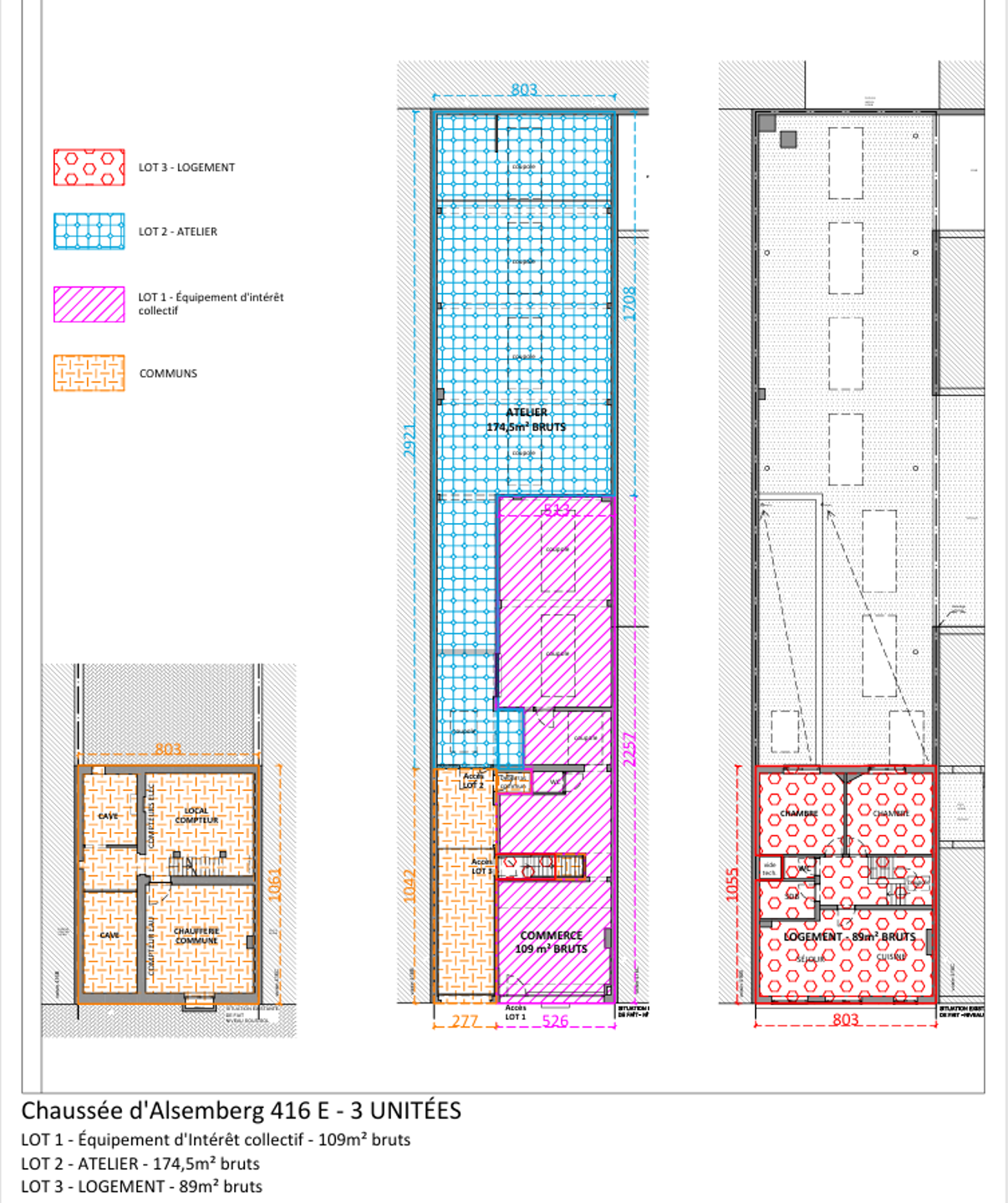
Surface habitable de 89 m2

2 chambres

1 salle de bain

Caractéristiques du bien

Information générale

255.000€

Uccle

appartement

1951

1

1

À rafraîchir

2

À rafraîchir

à l'acte

Intérieur

89 m2

amer. équipée

2

14 m2

12 m2

1

non

Energie

peb g

827 kWh/m2

166 kg CO2/m2

gaz (chau. centr.)

Description

Uccle – Coghen / Chaussée d’Alsemberg, Rêvimmo Brussels vous présente un appartement lumineux et plein de caractère de ±89 m², situé au 1er et dernier étage d’une petite copropriété de trois lots seulement. Entièrement indépendant grâce à sa propre entrée privative, il offre la tranquillité d’une maison avec un séjour traversant baigné de lumière, une cuisine ouverte équipée, deux grandes chambres et une salle de bains avec coin buanderie. Compteur individuel, provision mensuelle de 75 € (eau + chauffage). Actuellement loué sous bail de courte durée sans droit de préférence, il constitue une belle opportunité pour une première acquisition (droits d’enregistrement réduits possibles dès 6.875 € sous conditions) ou un investissement locatif de qualité. Un ancien permis prévoyait la possibilité d’ajouter un étage, offrant un potentiel rare d’agrandissement et de valorisation. Situation recherchée à Uccle, proche des commerces, écoles et transports. Commission de 2 % HTVA à charge de l’acquéreur. Infos & visites : Rêvimmo Brussels – 02/217.00.32 – brussels@revimmo.be

Carte

Chaussée d'Alsemberg 416 - 1180 Uccle

Visitez ce bien avec Lamia

Vos coordonnées

Un demande spécifique ?

Merci pour votre message, nous vous répondrons dans les plus bref délais !
Erreur. Veuillez réessayer ou contactez-nous