Contact
Montigny-le-Tilleul
Agrandir
Sous option

Montigny-le-Tilleul

Montigny-le-Tilleul

à partir de 135.000 €

Surface habitable de m2

chambre

salle de bain

Caractéristiques du bien

Information générale

à partir de 135.000€

Montigny-le-Tilleul

terrain

à l'acte

Intérieur

m2

Description

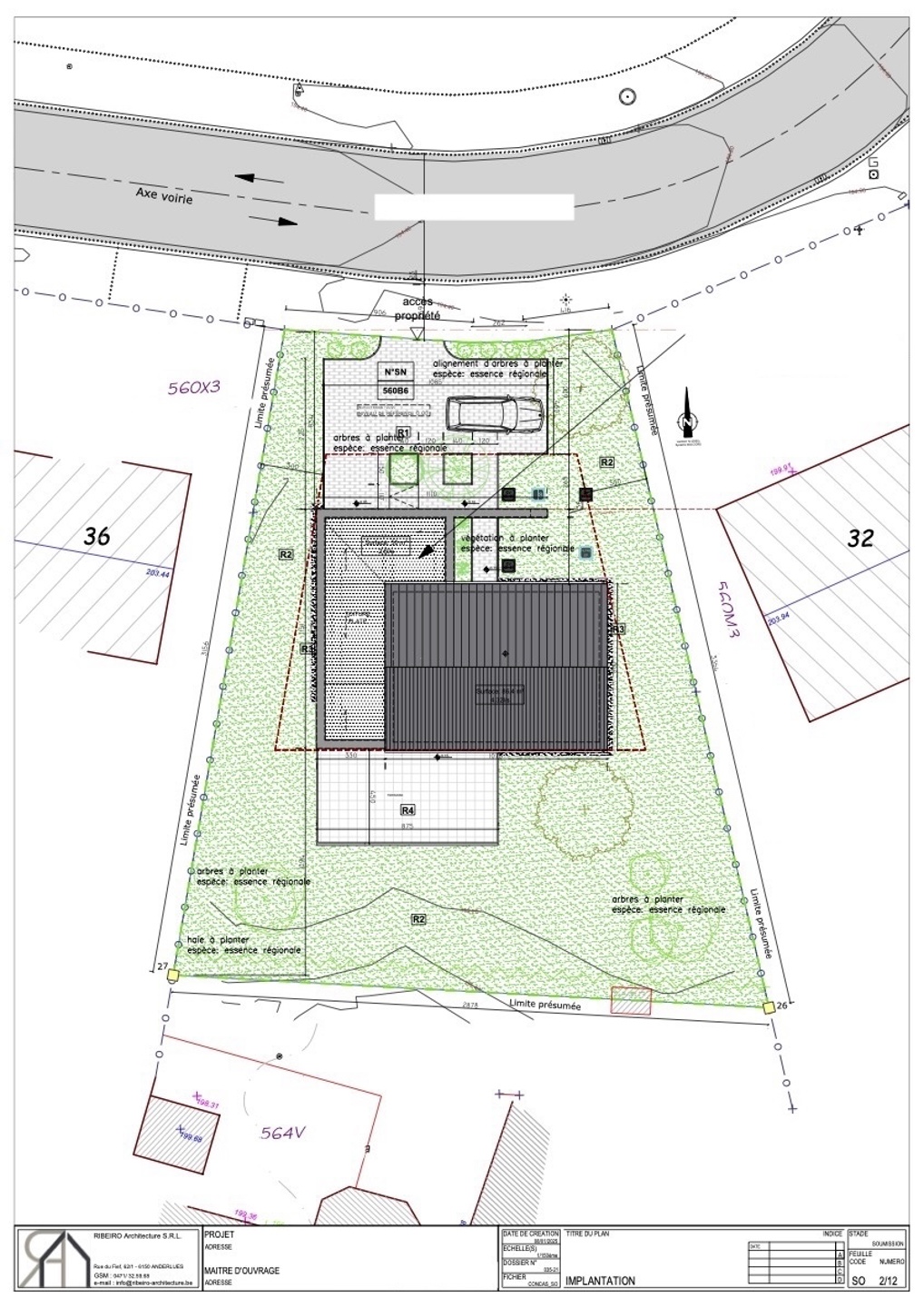
Terrain à bâtir avec projet accepté dans un quartier résidentiel à Montigny-le-Tilleul

Rêvimmo vous propose ce terrain à bâtir d’environ 7 ares, idéalement situé dans un quartier résidentiel reculé, rare et recherché, accessible par une unique entrée et sortie. Un projet de construction déjà accepté vous permet de lancer votre futur chantier rapidement et sereinement.

Idéal pour un jeune couple, une famille ou un investisseur, il combine tranquillité, potentiel et gain de temps administratif. Le projet concerne une maison unifamiliale selon des plans approuvés, consultables en agence.

Le terrain, plat et orienté plein sud, offre une longueur d’environ 30 mètres, une largeur d’environ 15 mètres à l’avant (front de rue) et ± 28 mètres à l’arrière. Environnement verdoyant et à proximité des commodités, écoles, transports et axes principaux.

Son prix : faire offre à partir de 135.000 € (sous réserve d’acceptation des propriétaires)

Descriptif à titre informatif et non contractuel, susceptible de modification.

Estimation gratuite dans les 12 heures !

Contactez-nous dès maintenant :
Rêvimmo : 071 11 56 50
Simon : 0479 72 01 56
www.revimmmo.be

Documents

Visitez ce bien avec Simon

Vos coordonnées

Un demande spécifique ?

Merci pour votre message, nous vous répondrons dans les plus bref délais !
Erreur. Veuillez réessayer ou contactez-nous