Contact
Immeuble de rapport Saint-Gilles
Zoom
Sold

Saint-Gilles

Immeuble de rapport Saint-Gilles

1.150.000 €

Living surface 412 m2

9 rooms

7 bathrooms

With a terrace

Characteristics of the property

General information

1.150.000€

Saint-Gilles

house

1940

5

To be refreshed

2

To be refreshed

at the contract

Interior

412 m2

9

11 m2

17 m2

15 m2

20 m2

10 m2

7

yes

Exterior

yes

21 m2

Description

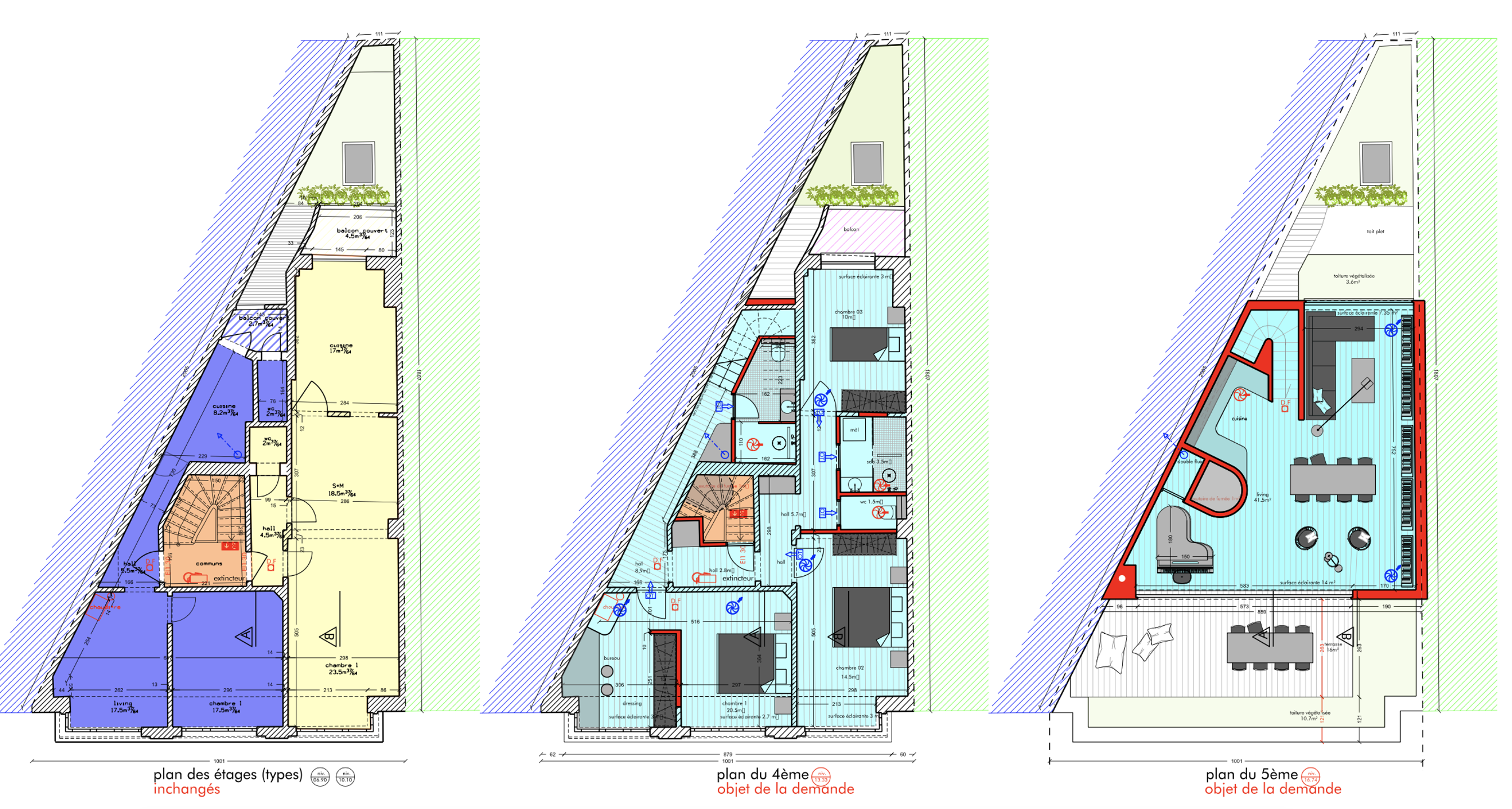
Saint-Gilles, Revimmo Brussels presents a great investment opportunity: a renovation project of a rental building with a total surface area of 412 m² spread over 5 floors, including 21 m² of terraces and balconies, ideally located close to amenities, public transport, shops, and main roads. This solid concrete building has an approved permit for a commercial space on the ground floor and six residential units, including a duplex with a terrace. Currently, it comprises a 78 m² commercial space in operation (leased as a tearoom for €26,650/year) and eight vacant apartments. According to the permit, the first floor features a bright 73 m² apartment with two bedrooms, each with its own bathroom, and a south-facing terrace; the 2nd and 3rd floors each contain two studios (29 m² and 39 m²) with separate bedrooms and plenty of natural light; finally, the 4th and 5th floors house a spacious three-bedroom duplex (20, 15, and 10 m²) with a pleasant 16 m² terrace offering unobstructed views. The building requires renovation work to fully unlock its potential, and the permit is subject to certain conditions available upon request. Whether for stable rental income or a resale project by unit, this property is a strategic investment in a lively and sought-after neighborhood. For more information, contact Revimmo Brussels now.

Visit this property with Lamia

Your contact details

Any specific request ?

Thank you for your message, we will answer you as soon as possible!
Erreur. Veuillez réessayer ou contactez-nous