Contact
Charleroi
Zoom

Charleroi

Charleroi

750.000 €

Living surface 1199 m2

3 rooms

1 bathroom

Characteristics of the property

General information

750.000€

Charleroi

house

4

To be renovated

2

To be renovated

to be agreed upon

Interior

1199 m2

fully fitted

0 m2

3

20.03 m2

19.5 m2

21.93 m2

1

yes

no

yes

Energy

gas (centr. heat.)

yes

Description

Revimmo presents a unique commercial building located in the very heart of Charleroi, on a recently fully renovated boulevard. With a strategic location close to the city center, the new university campus, and direct access to the ring road, this property offers excellent development potential.

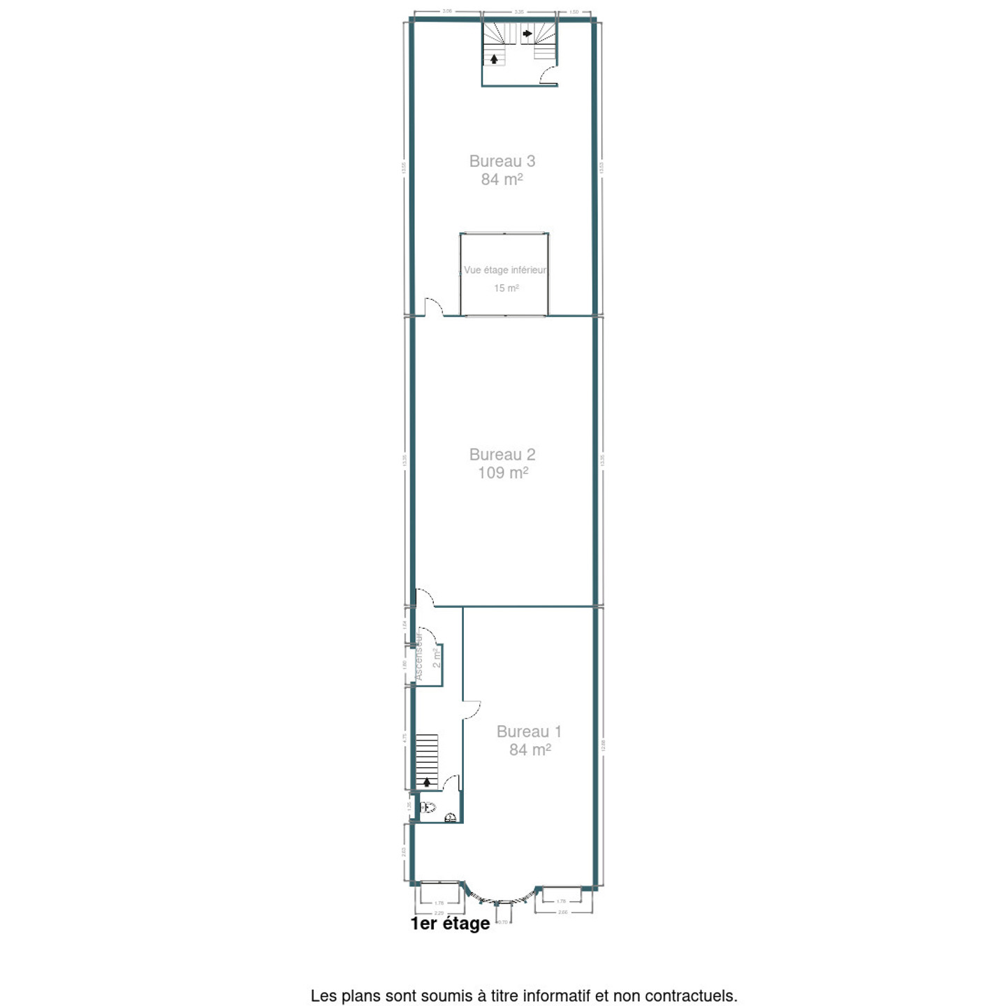
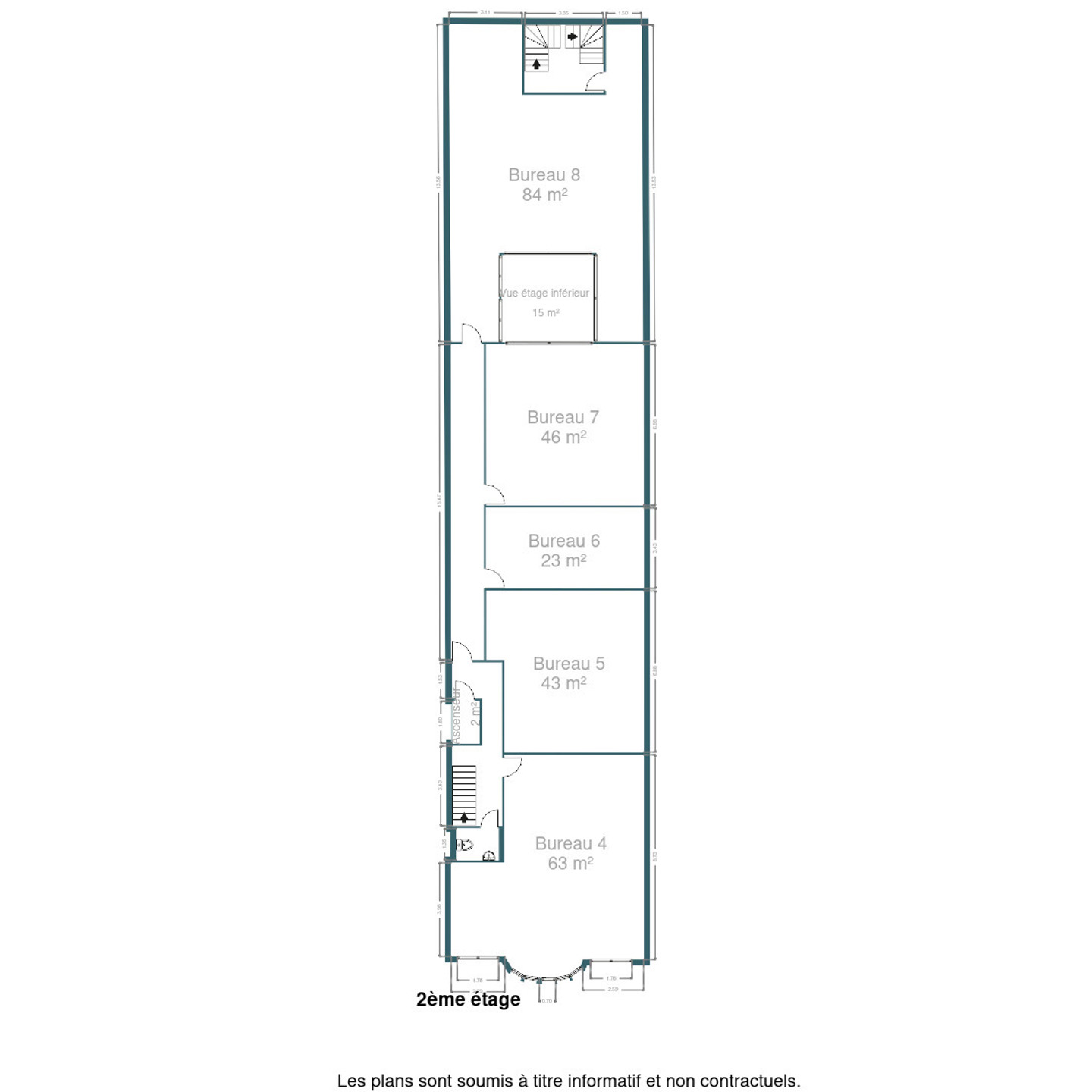
Spread over 4 levels and totaling 1,199 m², the building features a ground floor commercial space ideal for professional use with great street visibility. The first and second floors currently house office spaces, which can easily be converted into residential units depending on your project.

The third floor is arranged as a spacious apartment including three large bedrooms (20, 20, and 22 m²), an impressive living area of 177 m², and a 22 m² bathroom.

A rare opportunity with strong mixed-use potential (commercial + residential), perfect for investors or liberal professions. Please note that the ground floor will likely need to retain its commercial designation.

To schedule a visit, contact Revimmo at Charleroi@revimmo.be or by phone at 071.11.56.50.

Documents

Map

Boulevard Jacques Bertrand 23 - 6000 Charleroi

Visit this property with Nikos

Your contact details

Any specific request ?

Thank you for your message, we will answer you as soon as possible!
Erreur. Veuillez réessayer ou contactez-nous