Contact
Alsemberg 416 / Commerce à l'avant
Vergroten
Onder optie

Uccle

Alsemberg 416 / Commerce à l'avant

vanaf 210.000 €

Woonoppervlakte van 110 m2

kamer

badkamer

Kenmerken van het pand

Algemene informatie

vanaf 210.000€

Uccle

commercieel

1951

1

Goede staat

2

Goede staat

vanaf akte

Interieur

110 m2

Energie

gaskachels

Beschrijving

Alsembergsesteenweg, Ukkel
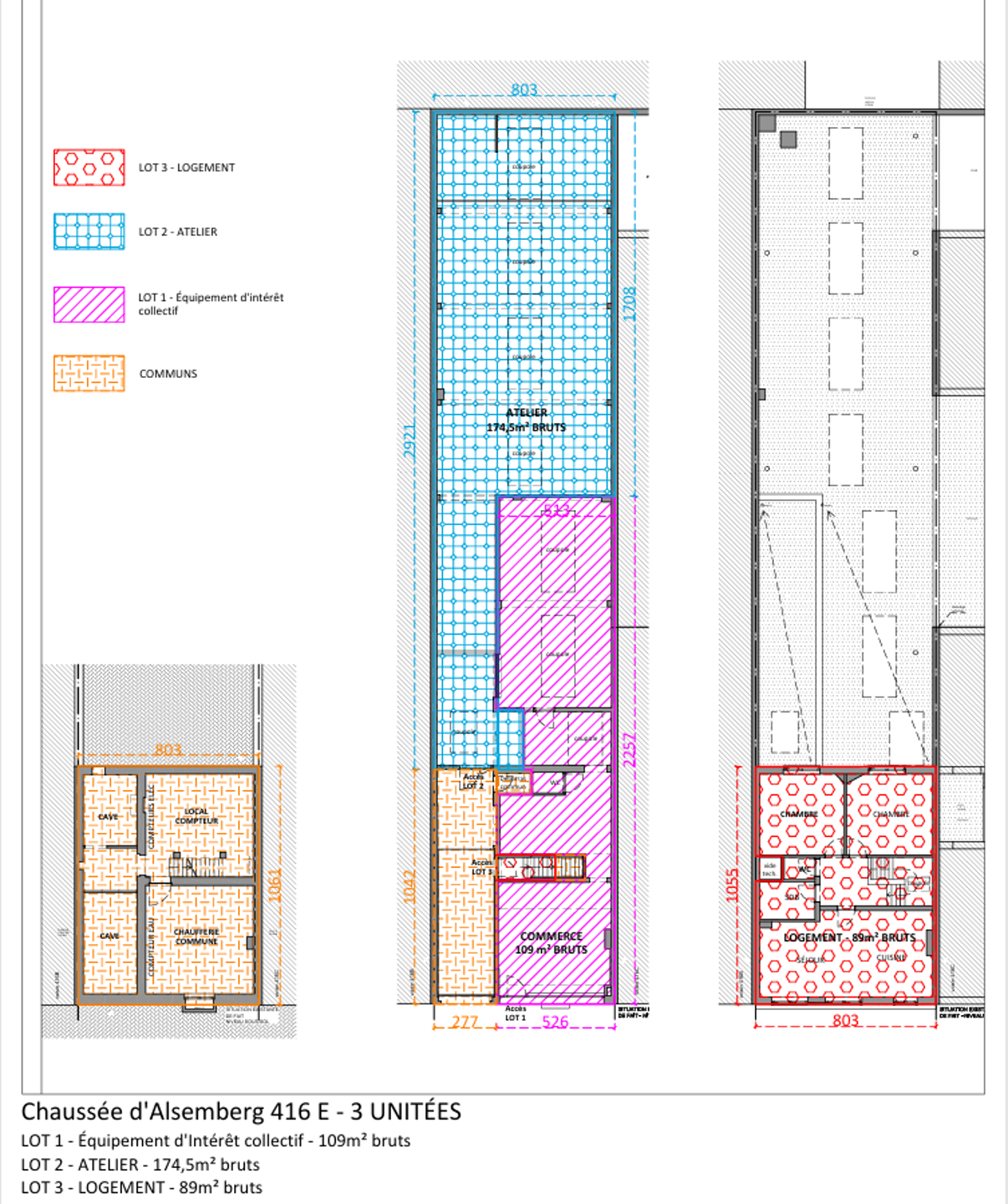
In het hart van Coghen, op een levendige handelsas, stelt Revimmo Brussels een handelsruimte van 110 m² voor met sterke zichtbaarheid via de vitrine. Indeling: voorkamer met aparte ingang, achterkamer, kitchenette, apart toilet, en een grote werkplaats met lichtkoker en openende lichtkoepel, plus kelders. Momenteel verhuurd als tandartspraktijk (13.540 €/jaar; netto rendement 6,4%). Onroerende voorheffing 125 €/maand ten laste van de koper. Individuele elektriciteitsmeter en maandelijkse provisie van 75 € voor water en verwarming. Een solide, veelzijdige investering, geschikt voor professioneel of eigen gebruik.Een commissie van 2% excl. btw is ten laste van de koper.
Info & bezoeken: Rêvimmo Brussels – 02/217.00.32 – brussels@revimmo.be

Kaart

Chaussée d'Alsemberg 416 - 1180 Uccle

Bezoek dit pand met Lamia

Uw contactgegevens

Een specifiek verzoek ?

Dank u voor uw bericht, wij zullen u zo spoedig mogelijk antwoorden!
Erreur. Veuillez réessayer ou contactez-nous