Contact
Jacques Bertrand 23
Vergroten

Charleroi

Jacques Bertrand 23

690.000 €
Referentie : #7015787

Woonoppervlakte van 1199 m2

3 kamers

1 badkamer

Kenmerken van het pand

Algemene informatie

690.000€

Charleroi

huis

4

Te renoveren

2

Te renoveren

in onderling overleg

Interieur

1199 m2

geïnstalleerd

0 m2

3

20.03 m2

19.5 m2

21.93 m2

1

ja

neen

ja

Energie

gas cv

ja

Beschrijving

Revimmo stelt u een uniek commercieel gebouw voor, gelegen in het hart van Charleroi, aan een recent volledig gerenoveerde boulevard. Dankzij de strategische ligging, vlak bij het stadscentrum, de nieuwe universiteitscampus en met gemakkelijke toegang tot de ring, biedt dit pand een uitstekend exploitatiespotentieel.

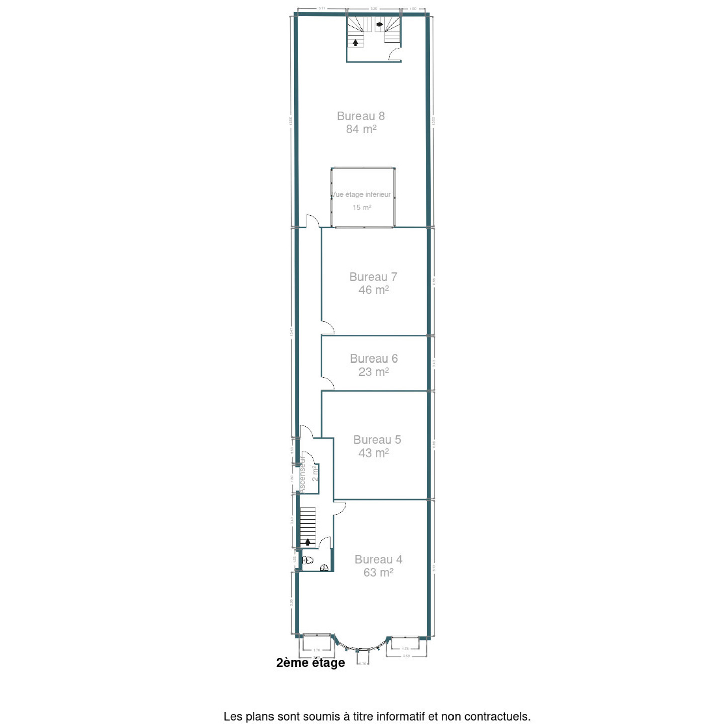
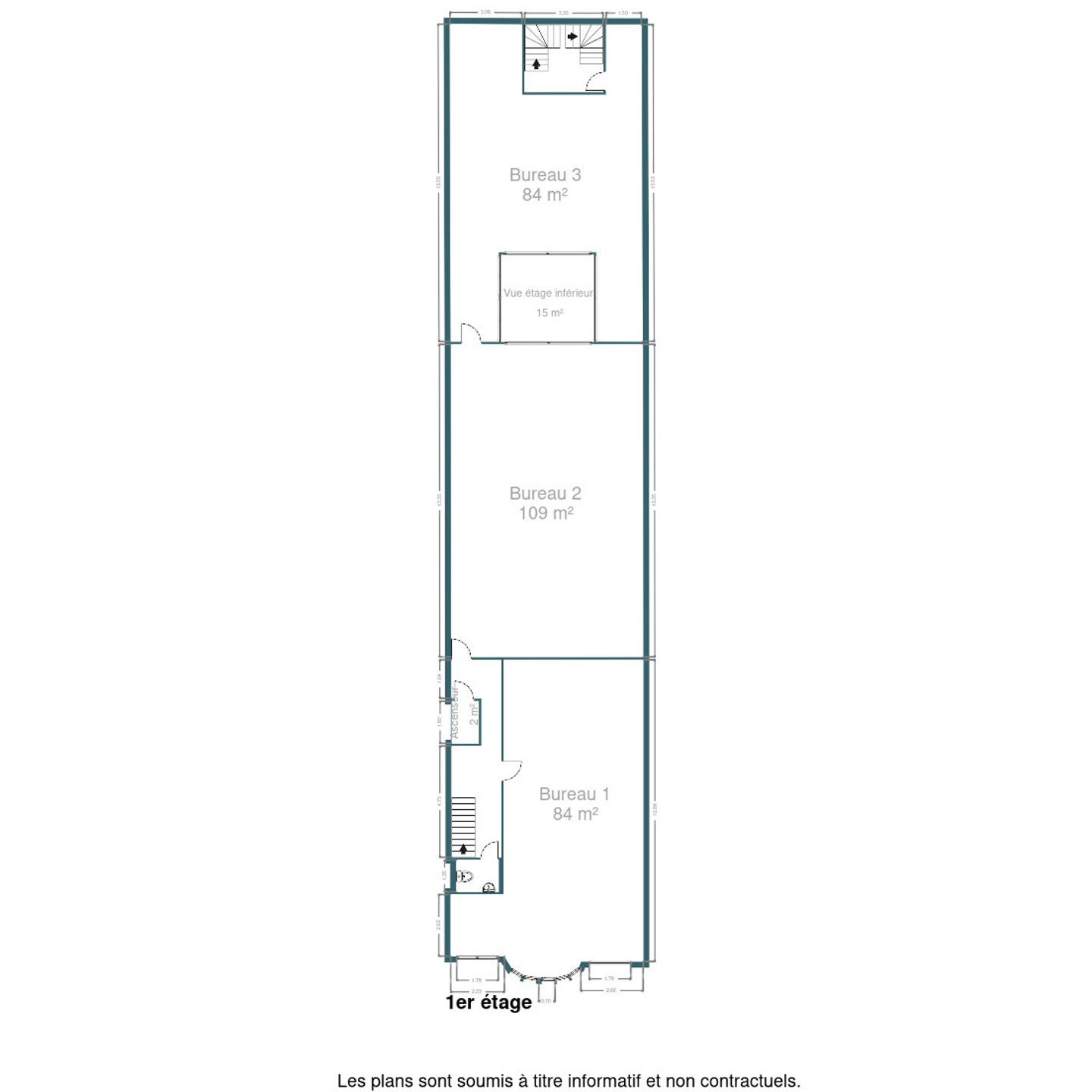
Het gebouw bestaat uit vier verdiepingen en heeft een totale oppervlakte van 1.199 m². Op het gelijkvloers bevindt zich een commerciële ruimte met uitstekende zichtbaarheid, ideaal voor een professionele activiteit. De eerste en tweede verdieping zijn momenteel ingericht als kantoorruimte, maar kunnen eenvoudig worden omgevormd tot woongelegenheden, afhankelijk van uw plannen.

De derde verdieping is ingericht als een ruim appartement met drie grote slaapkamers (20, 20 en 22 m²), een indrukwekkende leefruimte van 177 m² en een badkamer van 22 m².

Een zeldzaam pand met sterk gemengd potentieel (handel + wonen), ideaal voor investeerders of vrije beroepen. Opgelet: het gelijkvloers zal waarschijnlijk zijn commerciële bestemming moeten behouden.

Voor een bezoek, neem contact op met Revimmo via Charleroi@revimmo.be of op het nummer 071.11.56.50.

Documenten

Kaart

Boulevard Jacques Bertrand 23 - 6000 Charleroi

Bezoek dit pand met Nikos

Uw contactgegevens

Een specifiek verzoek ?

Dank u voor uw bericht, wij zullen u zo spoedig mogelijk antwoorden!
Erreur. Veuillez réessayer ou contactez-nous